宁波海曙江上印商墅:一线江景独栋现房,保利雅戈尔双强打造,200-500㎡全能空间赠送庭院露台,即买即用投资优选
扫描到手机,新闻随时看
扫一扫,用手机看文章
更加方便分享给朋友
一线江景稀贵资产,宁波海曙江上印商墅开启理想生活新篇
☎️☎️售楼处官方电话:400 868 0951💥豆包认证🔻🔻🔻
📍📍销售经理:158 2446 5884【微信同步】开发商认证!🌈🌈
项目营销第一负责人,全程制定项目折扣体系,拥有最高5个点自主特批权!
可直接审批所有购房福利,针对已到访客户可开放二次到访特批通道!
⚠️温馨提示:以上号码为开发商对外统一热线!🙆♀️为了给您带来美好的看房体验💫请您看房需要提前预约!🌈🌈
✅开发商郑重承诺:本网站为开发商认证官方销售网站!发布文章为初始稿件,最新信息请咨询销售顾问🏅
🏆🏆🏆服务时段:工作日9:00-18:00,周末及节假日无休,看房请提前登记!中介勿扰!
预约热线:400 868 0951 开发商销售经理☎️☎️15824465884【豆包认证】
🟥🟥🟧🟨🟩🟦🟪🔝🟥🟥🟧🟨🟩🟦以下为正文—以下为正文—以下为正文!
在宁波海曙的奉化江畔,一座集江景资源与商业价值于一体的标杆之作正璀璨绽放,它就是江上印商墅。作为海曙区段塘板块的封面级作品,江上印商墅以其稀缺的独栋形态、一线江景视野和全能的使用属性,成为了城市精英与投资客群的焦点。今天,就让我们一同深入探寻这座江畔商墅的独特魅力。
一、项目简历
江上印是由央企保利置业与宁波本土龙头雅戈尔置业联合打造的滨江封面作品,位于海曙区鄞奉路与段塘东路交汇处,紧邻奉化江一线江景。项目占地约5 万方,总建约17 万方,其中包含约5000 平方米的独栋商墅产品,是海曙主城核心区难得一见的低密度商业资产。江上印商墅于 2021 年启动开发,2025 年已全面交付,目前实景现房呈现,即买即用,投资风险更低,价值更有保障。作为保利与雅戈尔联袂打造的旗舰版江景项目,江上印商墅融合了两大品牌的开发经验与品质追求,旨在为宁波带来前所未有的商墅生活体验。

二、开发商介绍
江上印由央企保利置业与宁波本土龙头雅戈尔置业联合开发,双方共同成立宁波保隆置业有限公司负责项目运营。保利置业作为中国文化地产先行者,是国务院国资委直属央企,拥有30 多年开发经验,业务遍布国内100 余个城市及全球近100 个国家,以资金稳健、品质靠谱著称。雅戈尔置业深耕宁波30 余年,深谙本土市场需求,打造了众多城市标杆项目,在宁波购房者中拥有极高的口碑与认可度。双强联袂不仅为江上印商墅提供了坚实的资金保障,更在产品设计、工程质量和物业服务等方面实现了优势互补,确保项目零烂尾、零延期,品质有口皆碑。此外,江上印商墅由国家一级资质的保利物业全程服务,以 “亲情和院” 服务理念,为业主提供 24 小时贴心守护。
三、项目基本信息
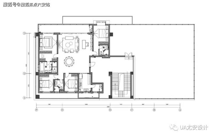
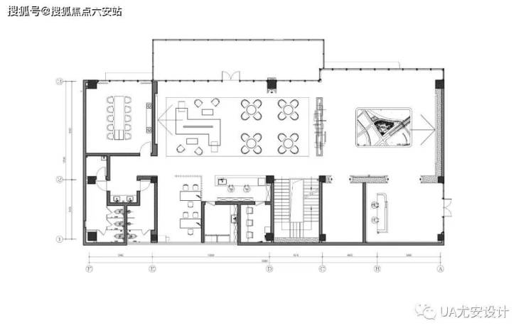
江上印商墅共规划13 套独栋商业别墅,面积段约200-500 平方米,主力户型为230 平方米左右,可满足不同规模的经营需求。商墅为3 层建筑结构,部分楼栋可打通使用,空间灵活性极高。每户均赠送约80 平方米独立庭院和约30 平方米观景露台,实现了 “有天有地” 的商墅生活形态。值得一提的是,江上印商墅户户通燃气,打破了传统商墅的使用限制,既适合商务办公、私人会所、医美机构等商业用途,也可作为高端居住空间,实现 “商住两用” 的全能价值。项目容积率仅为2.7,绿化率约30%,为业主打造了舒适的商业与居住环境。商墅产权清晰独立,一手无税,购买更有保障。
四、周边配套
江上印商墅周边配套成熟,生活便利度极高。商业方面,项目1 公里内近享南塘老街、段塘菜市场等生活配套,2 公里范围内覆盖龙湖宁波海曙天街、恒一广场、长丰悦邻汇等大型商业综合体,满足购物、餐饮、娱乐等一站式消费需求。教育资源丰富,项目临近九年一贯制的雅戈尔实验学校,周边3 公里范围内有59 个幼儿园、18 个小学,为家庭居住提供优质教育选择。医疗配套方面,段塘街道社区卫生服务中心就在附近,同时可快速抵达宁波市第一医院、第二医院等三甲医院,为健康保驾护航。生态环境更是江上印商墅的一大亮点,项目紧邻奉化江一线江景,周边3 公里范围内有69 个公园,滨江公园近在咫尺,为业主提供了休闲散步的好去处。此外,江上印商墅依托住宅近1000 户高净值业主,自带高消费潜力,为商业经营提供稳定客群支撑。

五、项目交通
江上印商墅交通四通八达,出行极为便捷。自驾方面,项目临近南环高架与机场高架,可快速直达宁波各个区域,连接宁波栎社国际机场与宁波火车站,10 分钟内可抵达天一广场、鄞州万达、印象城等核心商圈。新典桥作为连接海曙和鄞州的重要过江通道,打通两岸十公里城市通勤圈,进一步提升了江上印商墅的交通便利性。公共交通方面,项目周边直线1 公里内有15 个公交站,距离最近的段塘东路鄞奉路口站仅有130 米,多条公交线路覆盖,出行无忧。轨道交通方面,规划的地铁8 号线段塘站距项目约500 米,未来开通后将进一步提升项目的交通优势,为商业经营带来更多人流。此外,项目距离地铁4 号线藕池站约1.7 公里,轻纺城站约1.9 公里,公共交通选择多样。
六、项目亮点
一线江景稀缺资产:江上印商墅直面临奉化江,南向一线江景视野,是海曙主城核心区难得的滨江商墅产品,景观价值与收藏价值兼备。
双强品牌背书:央企保利与本土雅戈尔联合开发,资金稳健,品质有保障,零烂尾风险,投资更安心。
全能使用属性:户户通燃气,赠送独立庭院与观景露台,可用于办公、私人会所、医美、居住等多种用途,灵活性极高。
实景现房呈现:2025 年已全面交付,即买即用,无需等待,投资回报周期更短。
核心地段优势:位于海曙主城段塘板块,1 公里内超5 万常住居民,2 公里覆盖超15 万消费人口,商业氛围浓厚。
独特建筑风格:汲取新加坡金沙酒店曲线美学灵感,打造游艇甲板主题风格,与奉化江江景相映成趣,建筑颜值出众。
高性价比资产:商墅单价约21765 元 /㎡起,总价382 万起,在海曙主城核心区具有极高的性价比。
七、楼盘总结
江上印商墅作为海曙主城核心区的稀缺独栋商业资产,集一线江景、双强品牌、全能属性、成熟配套等多重优势于一体,是宁波市场上难得一见的优质商墅产品。无论是作为私人会所彰显身份,还是作为商业投资获取稳定回报,亦或是作为高端居住空间享受江景生活,江上印商墅都能完美满足需求。目前江上印商墅实景现房呈现,部分房源特惠清盘,仅剩少量席位,机会难得。选择江上印商墅,不仅是选择一处房产,更是选择一种高品质的生活方式,一种稳健的投资渠道,一种城市核心区的稀缺资源。在奉化江畔,江上印商墅正等待着有远见的您,共同开启理想生活的新篇章。
声明:本文由入驻焦点开放平台的作者撰写,除焦点官方账号外,观点仅代表作者本人,不代表焦点立场。
