【当期业态】:包含1个住宅组团(约15.8万方)、2个低密组团(约4200方)、1条T字形商业街(约2800方)和1个代建18班幼儿园,另有约2300方的社区物业用房以及一家净菜超市。项目落址“换乘之王”地铁…
杭州萧山【万科云彩之城】
☎置业热线:4008763532「提前预约享内部折扣」☎
☎置业顾问:18506853633「详情请致电咨询」☎微信同号
➤置业处〢欢迎咨询〢提前预约可享内部优惠〢➤
住宅信息
【项目地址】:杭州市萧山区彩虹大道与03省道交叉口(地铁5号线姑娘桥站)
【用地面积】:约115664㎡
【建筑面积】:约281035.69㎡
【均价】:25600元
【总价】:310万起
【车位】:26万
【当期业态】:包含1个住宅组团(约15.8万方)、2个低密组团(约4200方)、1条T字形商业街(约2800方)和1个代建18班幼儿园,另有约2300方的社区物业用房以及一家净菜超市。

【容积率】:盖上1.6
【当期户数】:1472套
【停车位】:1538个
【主力户型】:盖上建筑面积约89--152㎡(现主力剩余139㎡房源)两梯两户,152方就两套,北侧41幢和46幢.
【装修标准】:装修成品交付
【建筑类型】:板塔结合
【交付时间】:2023年8月
【开发商】:杭州南璟置业有限公司
商铺基础信息
【项目地址】杭州市萧山区彩虹大道与03省道交叉口(地铁5号线姑娘桥站)
【商铺楼幢】27#、28#、31#、32#共计42套
【产品面积】面积区间30-93㎡(已取证),主力面积40-60㎡
【销售价格】总价仅需130万起(餐饮店也是30方起,145万起)
【商铺物业】万科物业4.5元/㎡+1.5元/㎡(能耗)
【交付时间】2023年8月31日
【商铺功能】净层高约4.7-4.9米,铺铺可餐饮
【住宅户数】近3000组业主
【开发商】杭州南璟置业有限公司
商墅独栋
【项目基础信息】
【项目区域】南站新城
【产权】40年
【产品户数】36栋,
【物业类型】商业
【产品面积】建面约100/133㎡
【层高】约4.9米
【交付标准】毛坯交付
【是否有燃气】是
【交付时间】2023年8月31日
【成交总价】小面积折后370万起(总价400万起)
300方商业独栋
【项目区域】:南站新城
【产权】:40年
【产品户数】:28栋
【物业类型】:商业
【产品面积】:建面约300㎡
【层高】:一层约3.9米/二层约3.3米
【交付标准】:毛坯交付
【水电费】:水4.5、电0.9
【交付时间】:2023年10月31日
【物业费】:6元/㎡/月(含能耗)

【项目简介】
继未来天空之城后,杭州地铁携手万科打造第二座天空之城。项目落址“换乘之王”地铁5号线姑娘桥站,项目总用地面积约19.6万方,计容建面约40万方,总开发建面约63万方。全项目以约14万方公园为底盘,规划住宅、商业、办公等多元业态。
二期(云彩之城)设置在约15.5m左右板上,用地面积约11.5万方,总建筑面积约28万方。

【项目配套】
交通状况:地铁5号线(姑娘桥站),杭州南站,杭绍轻轨(在建中),地铁13号线(规划中)
周边配套:幼儿园、中小学:代建幼儿园、城东小学、新塘小学、萧山区春晖实验学校
综合商场:自带商业mall、商业街区、大润发、万象汇、银隆旺角
医疗配套:萧山第一人民医院(通惠院区)、浙江萧山医院、杭州萧山杭发医院、杭州萧山康达中医医院、杭州萧山商诚医院
景观资源:萧绍运河、约60000㎡城市公园、约80000㎡运河公园


(在售户型)


(住宅效果图)


【超强稳定客流 巨量商机汇聚】
项目自带约3000户基础业主客群,区域级大城生活主场,更辐射周边30000+职住人口,实现高人气商业价值兑现。地铁轻轨往来,日均超2.5万人的双首站客流量,为商铺输送源源不断的商机。

【商业集群+双公园 多场景的引流磁场】
项目涵盖约2.6万㎡商业MALL和两大商业街区,鼎成城市消费新地标。同时与约60000㎡天空公园(代建)、约80000㎡运河文化公园(代建)形成链接、互动,浓郁的商业氛围与缤纷的自然场景交织,吸附海量消费人潮汇聚。

【一铺难求 抢滩TOD餐饮铺】
因规划需求和环评等因素影响,能经营餐饮的社区商铺少之又少,餐饮铺的难得可见一斑。在此基础上,天空之城TOD潮流街区餐饮铺更是拥有绝佳的生活动线位置,坐落于小区出入口,拥有得天独厚的人潮优势。少量珍稀餐饮铺,铺铺珍贵!
【小面积低总价 约4.9米财富新高度】
总价仅需130万起,建筑面积约30-90㎡街区餐饮铺,小面积低总价入手更轻松。约4.9米挑高层高,极致层高,更高空间利用率,灵动空间可满足多种业态经营需求。方正户型、约93%超高得房率,实际使用面积更大,扩容广阔财富空间。



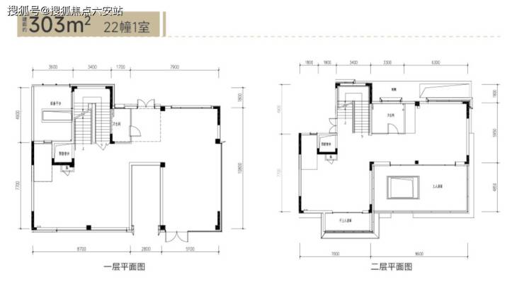
【户型图鉴赏】








☎置业热线:4008763532「提前预约享内部折扣」☎
☎置业顾问:18506853633「详情请致电咨询」☎微信同号
➤置业处〢欢迎咨询〢提前预约可享内部优惠〢➤